By Paul Lubienecki, PhD
This is the first in a series of articles on the industries, factories and commerce in Black Rock. Currently, this and later compositions, will explore the industrial heritage of Niagara Street.
From its formation in the early 19th century until the economic decline of the 1970s Black Rock was a vibrant and vital center for industry and manufacturing for the local and national economy. Harnessing the electric power generated at Niagara Falls and integrating the transportation facilities of the Erie Canal and the railroads of the Belt Line created an exceptional industrial center unrivaled in the area. At the core of all this manufacturing was Niagara Street.
Niagara Street had been laid out and constructed between 1807 and 1809 and housed a tavern a few small businesses and homes. The War of 1812 saw substantial development of the street due to its logistical position on the water and its natural harbor. Consequently the village of Black Rock grew around the area of Niagara and Ferry Streets. After the War the Porter-Barton Company of Black Rock resumed their portage business of transporting trade and also constructed new warehouses. Shipbuilding became a major industry and supporting businesses emerged.
The construction of the Erie Canal and the battle for its terminus altered the development of both Black Rock and Buffalo. With Buffalo as the canal’s terminus shipping was the primary business for the city. However, with the construction of a local rail line, later expanded into the Belt Line, and a lock at the foot of Austin Street economic progress was rapid. Enhanced water power generated by the river and efficient transportation made Black Rock the most heavily industrialized section of the area by the middle of the nineteenth century.
Several mills were located on Niagara Street on the river near Amherst Street and Bird Avenue. These included Frontier Mills, and Enos’s flour mill. Other mills included the Erie Mills and the Queen City Mills and the Clinton Mills. In 1866, Globe Mills, Niagara Mills, and Erie Mills were situated along the river near Niagara and Amherst streets. Unfortunately, by the 1920s most of the mills either burned or were torn down.
In the decades prior to the Civil War iron smelting, for the fabrication of nails, stoves, rails and heavy equipment, evolved in Black Rock. The area was ideally suited for this industry due to its location on the water in the manufacturing process and for shipping of raw materials and finished products. After the Civil War Black Rock was the state’s premier manufacturer of iron products.
Located at Niagara Street and Forest Avenue, the Niagara Bridge Works was regarded as one of Buffalo’s most important establishments in connection with the iron industry in the 1880s. This Black Rock company, founded in 1873 by G.C. Bell and S.J. Field, employed between 100 and 300 workers in the 1880s. In 1883, Thomas F. Griffin & Sons began manufacturing car wheels on Forest Avenue near Niagara Street, and the Shepard Hardware Company relocated their foundry to three-and-one-half acres in this area from Chicago Street.
As the American Industrial Revolution of the late 19th century proceeded Black Rock benefitted from its location as an area close to the markets of the Midwest and East coast. With the enlargement of the canal and docks raw materials arrived and left Black Rock as finished goods. Consequently Niagara Street was a hub of large industries relocating and expanding into the early years of the 20th century.
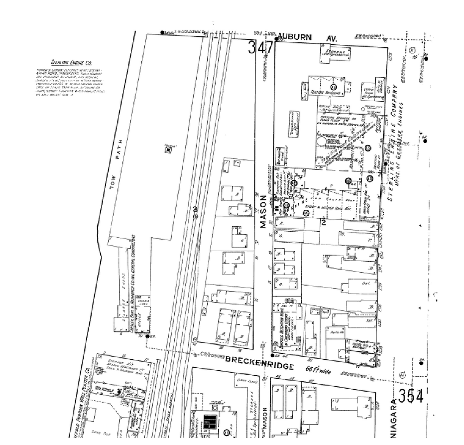
Some of the notable companies were: the Buffalo Gasoline Motor Company at 1280 Niagara Street. Constructed in 1903 the company produced marine engines and combustion engines for automobiles until 1946. In 1907 the Sterling Engine Company constructed a factory building at 1246 Niagara on the west side of Niagara Street between Breckenridge Street to the south and Auburn Avenue to the north. By 1925, Sterling Engine expanded further on Niagara Street. Sterling Engine’s “only goal” was marine construction, but by 1946, the company was producing engines for ships, airplanes, cars, and trains. In the late 1950s the company was sold and relocated to Kansas.
The American Body Company produced auto bodies in aluminum, steel and wood at 1255 Niagara Street beginning in 1911. By the 1950s the company had moved out of their Niagara Street location. Sowers Manufacturing Company constructed a factory at 1294 Niagara Street in 1914. The company made equipment for seamless jacketed and single shell kettles, mixers, vacuums and pressure apparatus. The company remained on Niagara Street until 1942 when the property was sold.
In addition to the larger companies there were some smaller industries interspersed on Niagara Street. Phelps Auto Top and Trimming was located in a simple brick masonry building at 1245 Niagara Street. As was common with smaller industries, companies came and went relatively quickly. New Method Laundry occupied this space in 1915 and by 1916 Reed Chocolate Company Candy Factory relocated there. Over the next few decades business interests would come and go.
With the end of the Second World War there was a shift in global economic patterns and this impacted western New York, particularly Black Rock. Large manufacturing companies either moved out of the area or ceased operations. Gradually, Niagara Street deteriorated marked by shuttered buildings and memories. A resurgence would occur but not for several years.

Above: Map showing east side of Niagara Street between Breckenridge Street and Auburn Avenue. The American Body Company is located at the northeast corner of Niagara Street and Auburn Avenue. Note Reed Chocolate Company – Candy Factory in the middle of the block and the commercial storefronts. The residences at the north end of the block remain extant.

Above: Map showing west side of Niagara Street between Breckenridge Street and Auburn Avenue. Sterling Engine Company is located at the northwest corner of Auburn Avenue and Niagara Street, the remainder of the block east of the railroad tracks is residential, with commercial storefronts and the Meeting Hall on Breckenridge Street.

Above: the E.R. Thomas Motor Company, originally bicycle manufacturers, started building motor cars in 1899 in Buffalo, New York.
1200 Niagara Street at West Ferry St.
